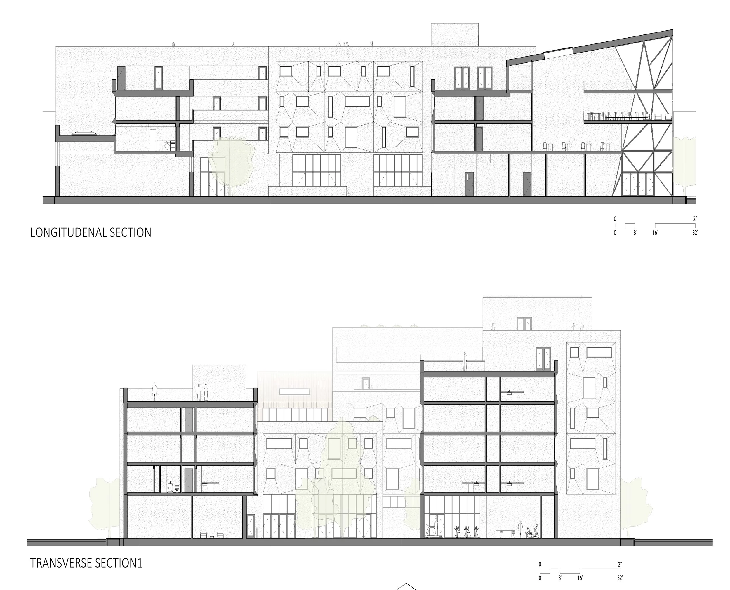
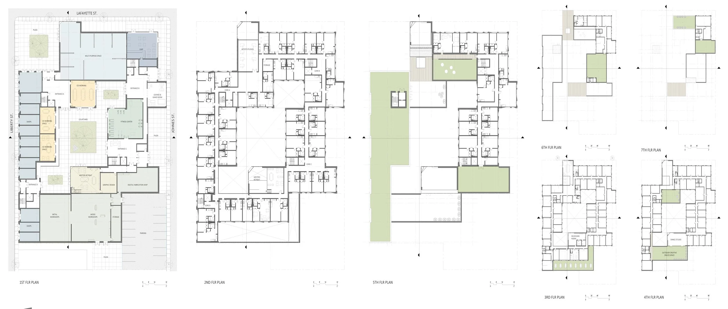
Palette - Newburgh, NY
Typology:
Area:
Year:
Residential, Ground-Up
100,000 SF
2024
This Project was completed as a part of a Masters Program at Spitzer School of Architecture.
Typology:
Area:
Year:
Residential, Ground-Up
100,000 SF
2024
This Project was completed as a part of a Masters Program at Spitzer School of Architecture.