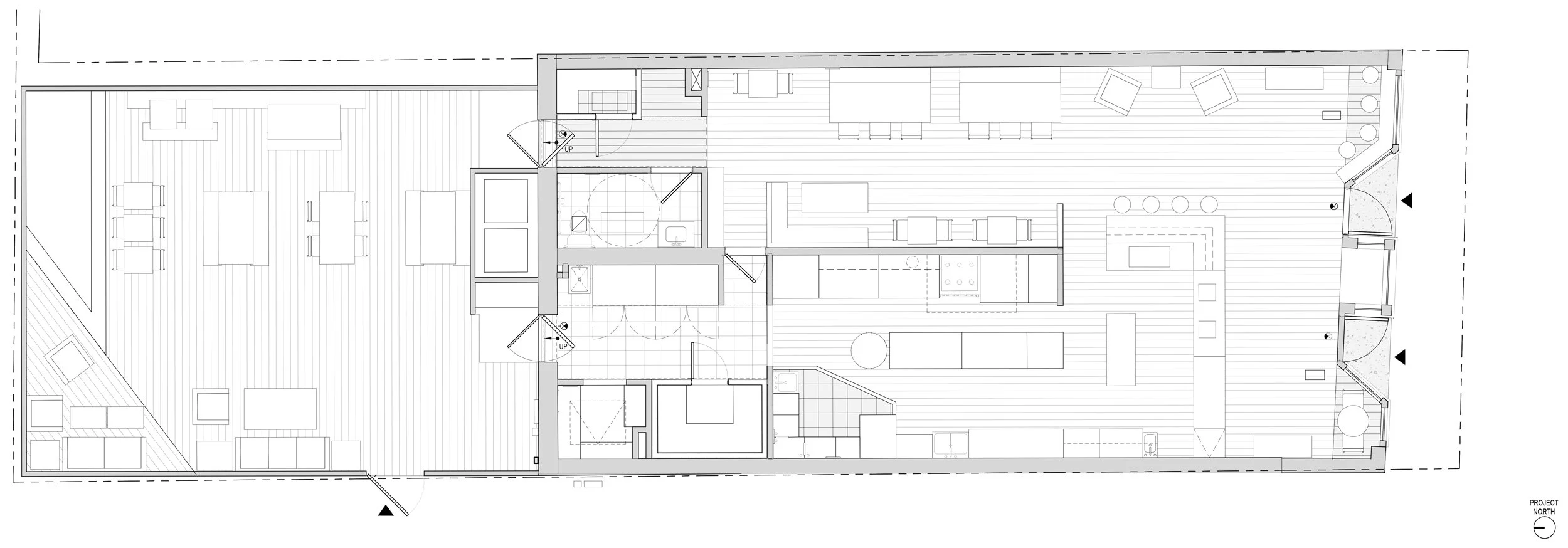
Beacon Café - Upstate NY *
Typology:
Area:
Year:
Commercial, Exterior/Interior
2,500 SF
2020
* Project of Elemental Architecture, LLC. This Project was completed while employed there and under their supervision.
Typology:
Area:
Year:
Commercial, Exterior/Interior
2,500 SF
2020
* Project of Elemental Architecture, LLC. This Project was completed while employed there and under their supervision.